Operator Manual
Previous Page    Next Page
Go to page number
PDF to Text.
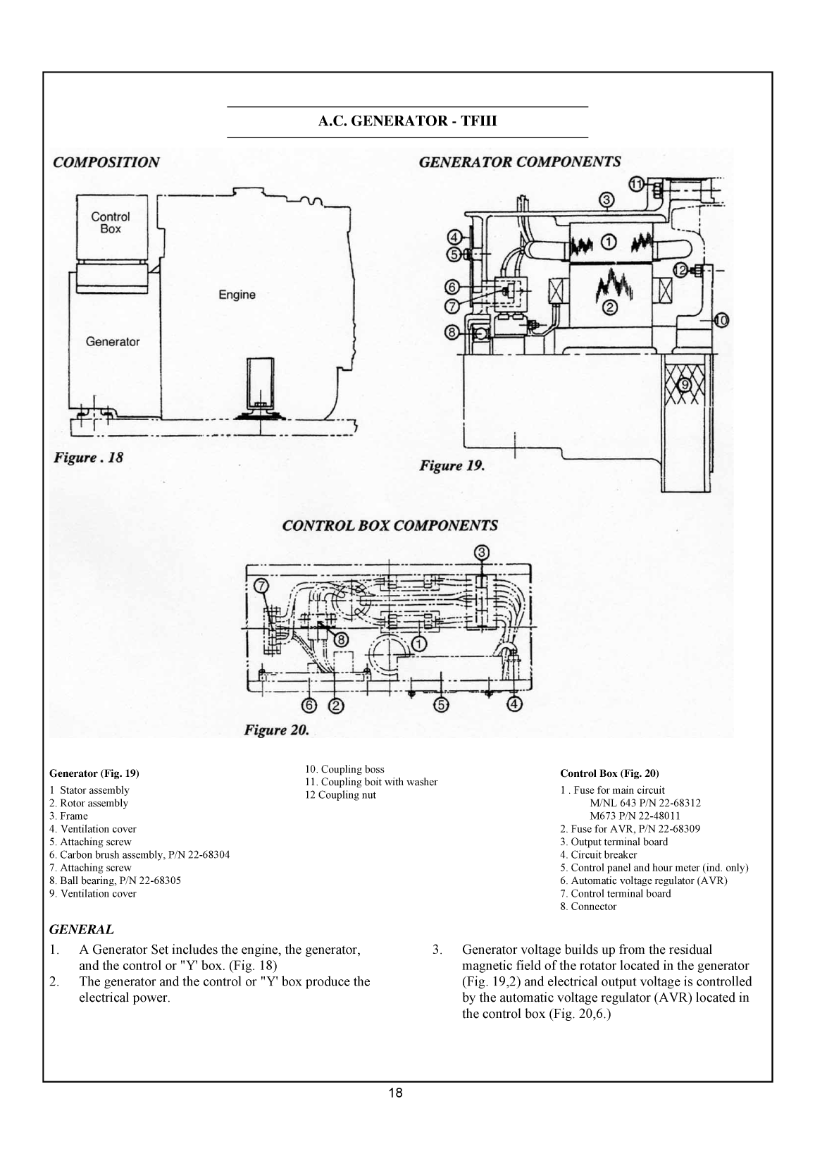
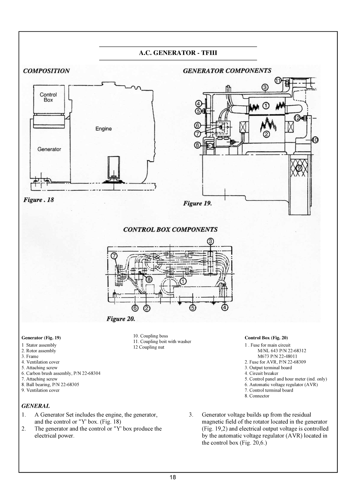
10101 1095 0101 M643M673 NL643 OPERATORS MANUAL Read this operators manual thoroughly before starting to operate your equipment This manual contains TABLE OF CONTENTS information you will need to run and service your new 2 Servicing continuedUnit Identification Fuel Filters 1314 Bleeding the Fuel System 14 Models Included 2 Injector Service 1416 Model Numbers 2 Injection Pump 16 Serial Numbers 2 Cooling System General 16Warranty 3 Cooling System Flushing 1617Safety Rules 3 Heat Exchanger Marine 17 Clean Radiator 17Component Locations Raw Water Pump Marine 17 M643 Marine Generator 4 Generator Ends 17 M673 Marine Generator 4 Electrical System General 17 NL643 NL673 Industrial Generators 5 Glow Plugs 1718Panels Booster Batteries 18 Battery Care 18 Northern Lights Generator Sets 67 Winterizing OutofService 18Operating Procedures AC Generator TFIII Breakin Period 8 General 19 Before Starting 8 Connections 2021 Starting 8 Operation 21 Operating 8 Maintenance 2123 Stopping 8 Shutdowns and Alarms 9 Spare Parts 9 Electrical 24Servicing Schedule Chart 1011 Engine 2425 Data Marine 26 Lubrication General 12 Industrial 27 Oil Changes 12 Changing Oil Filter 12 Wiring Diagrams Air Filter 12 DC Electrical 28 VBelts 1213 AC Electrical 29 Retightening Cylinder Head Bolts 13 Valve Clearances 13 Fuels General 13 0 of marine engines and generator sets presents must be adhered to more strictly Failures begin with minorunique problems In many cases boats cannot be moved to a problems that are overlooked and become amplified whenrepair facility Marine engines cannot be compared to the not corrected during routine maintenance As operator it isservicing of automobiles trucks or even farm equipment your obligation to learn about your equipment and its properFailures often occur in remote areas far from competent maintenance This is not a comprehensive technical Marine engines are taxed far more severely than manual Nor will it make the reader into an expert mechanicauto or truck engines therefore maintenance schedules Its aim is to aid you in maintaining your unit properly UNIT INCLUDEDThis manual covers operating instructions for M643 and M673 marine generator sets and NL643 industrial generator setMODEL NUMBERSModel numbers give units application block model aspiration and RPM MNL 643673 M Northern Lights marine generator set Model number of engine block Bore Cylinders NL Northern Lights industrial generator set 64mm 3 67mm 3 Northern Lights marine diesel generator set Northern Lights industrial diesel generator M 673 with a 673 engine TFIli18C generator end NL 643 set with a 643 engine TFlli18B generator and AVR end AVR and a radiator Northern Lights marine diesel generator set M 643 with a 643 engine TFIli18B generator end and AVRSERIAL NUMBERSYour set has three serial numbers an engine number stamped on the block a generator plate and a generator set plate Use the serial number on the generator set plate when ordering parts or in correspondence The generator set plate is found on the service side of the generator and resembles the drawing below 1 WARRANTY A warranty registration certificate is supplied with your set It entitles the original purchaser of our NOTE If the warranty is to apply the servicing equipment to a warranty covering material or assembly instructions outlined in this manual must be faults The extent of coverage is described in the followed If further information is needed please Limited Warranty Statement We recommend that you contact an authorized dealer or the factory study the statement carefully SAFETY RULES Avoid wearing loose clothing without a belt when CAUTION Accident reports show that careless use of working around engines Do not oil or grease engine while it is runningengines causes a high percentage of accidents You can Use caution in handling fuel Never refuel a hot oravoid accidents by observing these safety rules Study theserules carefully and enforce them on the job running engine Do not smoke while filling fuel tank or servicing fuel system Never leave engine without proper security Keep your hands feet hair and clothing away Turn the coolant tank cap slowly to relieve pressure from powerdriven parts before removing Add coolant only when the Check for any loose electrical connections or faulty engine is stopped and cool wiring Mount a fire extinguisher near engine Engines should be operated only by Always disconnect the battery ground strap before knowledgeable qualified personnel making adjustments Look completely around engine to make sure that Operate engines in properly ventilated areas everything is dear before starting Keep trash and other objects away from engine Do not operate an engine that isnt in proper Escaping fluids under pressure can penetrate your working order If an unsafe operating condition is skin Use a piece of cardboard or wood not your noted tag the set and control panel so others will hands to search for leaks also know about the problem Provide first aid kits CAUTION This symbol is used throughout this book to alert you to possible danger areas Please take special notice of these sections 2 M643 AND M673 COMPONENT 1 Service side1 Generator End Cover 7 Lube Oil Fill 14 Secondary Fuel Filter 21 Starter Motor Remove for Brush Access 8 Lube Oil Dipstick 15 Generator Control Box 22 DC Alternator2 Base and Drip Pan 9 Block Drain 16 Air Filter Housing 23 Heat Exchanger End Cap3 Fuel Injection Pump 10 Lube Oil Filter 17 Lube Oil Fill 24 Heat Exchange r4 Belt Guard 11 Fuel Lift Pump 18 Fuel Injector Expansion TankExhaust5 Seawater Pump 12 Fuel Inlet and Return 19 Coolant Fill Manifold6 Lube Oil Drain 13 Control Panel Plugin 20 DC Regulator 25 Wet Exhaust Elbow 26 Manifold Drain 3 NL643 COMPONENT LOCATIONFigure 21 DC Alternator 6 Bleed Screw 11 Lube Oil Filter 16 Air Filter2 Muffler Exhaust Outlet 7 Fuel Injection Pump 12 Fuel Lift Pump 17 Lube Oil Fill3 Starter 8 Block Water Drain 13 Fuel Inlet and Return 18 Fuel Injector4 Power Cable Outlet 9 Lube Oil Drain 14 Secondary Fuel Filter 19 Coolant Fill5 DC Regulator 10 Lube 0il Dipstick 15 Generator Control Box 4 CONTROL PANELSSERIES IB GENERATOR CONTROL PANEL 1 SHUTDOWN BYPASSPREHEAT SWITCH Two functions are built into this switch The preheating of the engine and bypassing of the engine safety shutdown circuit Hold switch in on position 1020 seconds before starting engine and continue holding on during engine cranking Release the switch as soon as engine is running Holding the switch on too long can burn out the heater elements 2 ENGINE CONTROL SWITCH To start the engine hold switch in start position untilFigure 3A the engine is running After the engine starts release switch and it will return to the center position To stopSERIES 3C GENERATOR CONTROL PANEL engine move switch to stop position and release 3 HOUR METER Keeps track of engine running time 4 OIL PRESSURE GAUGE The oil pressure gauge shows the oil pressure in the engine lubricating system 5 ENGINE TEMPERATURE GAUGE Registers temperature of cooling water 6 DC VOLTMETER When the engine is stopped the voltmeter indicates the condition of the battery When the engine is running the voltmeter indicates the voltage output of the 3B For Series 4 Control Panels OnlySERIES 4 GENERATOR CONTROL PANEL 7 AC VOLTMETER Shows the generator output voltage 8 FREQUENCY METER HERTZ The frequency meter indicates alternating current frequency 60Hz 1800 RPM or 50Hz l 500 RPM 9 SELECTOR SWITCH Used to check voltage and current of each phase Return to Amps Off position when not monitoring 10 A C AMMETER Shows the generator load on each phase The phase is selected with the Ammeter Selector Switch 9Figure 3C 5 CONTROL PANELS INDUSTRIAL ONLY SERIES 6 GENERATOR CONTROL PANEL 1 SHUTDOWN BYPASS SWITCH S61 S62 This switch bypasses the safety shutdown feature during the starting procedure Follow instructions page 5 item 1 2 ENGINE CONTROL SWITCH S61 S62 Control switch starts and stops the engine Follow starting instructions page 5 item 2 ENGINE CONTROL SWITCH S63 S64 When switch is placed in autostart position the unit will automatically start when there is a drop in utility power When switch is placed in the manual position the unit can be tarted manually Special instructions come with autostart module 3 OIL PRESSURE GAUGE The oil pressure gauge shows the oil pressure in theFigure 4A engine lubricating system 4 HOUR METER Keeps track of engine running time 5 WATER TEMPERATURE GAUGE Registers temperature of cooling water 6 DC VOLTMETER When the engine is running the voltmeter indicates the voltage output of the alternator 7 ENGINE MONITORING ALARMS Alarm lights S62 and S63 include 7 lights and S64 includes 12 lights 8 ALARM LAMP TEST BUTTONFigure 4B When pressed alarm lights light if working 9 ALARM RESET BUTTON Press to reset alarm 10 AC VOLTAGE ADJUSTMENT RHEOSTAT Voltage has been set at factory and should only be adjusted by factory trained personnel 11 AMMETER SELECTOR SWITCH Used to check each phase for load condition Note Always leave this switch in the ON position while the unit is running 12 FREQUENCY METER HERTZ The frequency meter indicates alternating currentFigure 4 frequency 60 Hz 1200 or 1800 RPM or 50Hz 1500 RPM 13 AC VOLTMETER Shows the generator output voltage 14 AC AMMETER Shows the generator load on each phase The phase is selected with the Ammeter Selector switch 6 OPERATING PERIOD STARTING1 The first 100 hours on a new or reconditioned engine 1 Hold Shutdown BypassPreheat Switch in ON position are critical to its life and performance for 10 to 20 seconds before starting a cold engine2 Constantly check the engine temperature and oil Holding switch on too long can bum out the glow pressure gauges Sets with Series 3 or 4 panels plugs This step is not necessary if the engine is3 Oil consumption is greater during breakin as piston already warm rings and cylinder liners take time to scat 2 While holding the Shutdown BypassPreheat Switch in4 BreakIn 011 Changes Change engine oil and filter at ON position push Engine Control Switch to START 50 hours Chance oil and filter again at 100 hours position Consult Lubricants Section for oil recommendation 3 As soon as the engine starts release both switches Do5 Retighten head bolts at 50 hours See page 13 not crank starter for more than 20 seconds If Instructions fails to start the first time be sure starter has stopped before Sets Maintain at least a 75 load on your set forthe first 100 hours If this is not possible maintain no less WARNING Excessive cranking of starter on marine setsthan a 50 load to ensure proper seating of the piston rings equipped with water lift muffler can cause engine damageVary the load to help seat rings If engine does not start after three 20 second cranks remove impeller from the seawater pump This will preventBEFORE STARTING the muffler from filling with water and backfilling the1 Check the water level by removing the pressure cap exhaust line and engine Once engine starts shut it off from the expansion tank or radiator In order to give immediately and reinstall the impeller Restart and check the cooling water an opportunity to expand the level the exhaust overboard outlet for gushes of water should be about 1 in 25 cm below the filler cap OPERATING sealing surface when the engine is cold 1 Units with Series 3 46 Control Panels Check CAUTION Use protective clothing and open the filler gauges often Oil pressure must bc above 15PSI The DC voltmeter should read between 11 and 15 volts atcap carefully when the engine is warm to prevent burns 8025C ambient temperature Water temperature2 Check the oil level in the crankcase with the dipstick gauge must be below 200F 94C Check AC voltage The oil level must be in the waffled area on stick and frequency meters Series 46 Panels If gauges Never allow the level to go below this area Always deviate from normal levels shut down the set and add the same viscosity of oil as is already in the investigate crankcase 2 Let the unit run unloaded for a three to five minute3 Check the fuel tank level and open any fuel valves warmup period4 Marine sets close the seacock check and clean the sea 3 Add electrical load strainer and reopen the seacock STOPPING5 Marine sets place the battery switch in the ON position 1 Remove electrical load from generator set 2 Run engine for a 3 to 5 minute cool down periodNOTE The battery switch must always be kept ON while 3 Move engine control switch to the STOP positionthe engine is running If the switch is turned OFF while the is running the battery charging regulator could be 4 Marine sets shut off seacock fuel valve and batteryruined switch 7 OPERATING AND ALARMS SPARE PARTS1 Your unit is fitted with a system to protect it from high 1 ADE recommends that you keep the following spare water temperature or low oil pressure parts on hand for field service The parts are available a Generator sets have shutdown systems to stop the from your local Northern Lights dealer Some marine engine They have no warning horns models already have OnBoardKitsa handy box that b Other alarms and shutdowns are available as contains the most common parts you will need optional equipment 2 All owners should have the followingNOTE Do not rely on your warning or shutdown system a Primary and secondary fuel filter elements b 011 filtersto the exclusion of careful gauge monitoring Watching c Air filter industrial onlyyour gauges can prevent damage to the unit and d Alternator belt e Thermostat and power losses f Seawater pump impeller gaskets Marine only2 Do the following when your warning or shutdown g Glow plug system is activated h Injector and washer a Check the temperature gauge If above 205F 3 If your set is operating a long distance from a servicing 97C shut off the engine immediately dealer add the following b Use the Trouble Shooting Guide on page 21 to a Complete set of injectors isolate the cause of the overheat b Copper washers for injector change c Complete set of glow plugs CAUTION Do not remove the water fill cap of an d Fuel lift pumpoverheated engine Escaping high temperature steam cancause severe burns Allow the engine to cool and thenremove the cap slow1y using protective clothing d Make repairs and restart after the temperature gauge registers below 200F 94C e Watch the temperature gauge regularly and turn off the unit if the temperature rises above 205F 97C Repeat If the shutdown is activated and the temperature gauge shows temperature within normal temperature range a Check the engine crankcase oil level b If the oil level is low fill with recommended lubricating oil and restart Watch the oil pressure gauge carefully and shut off the engine if it does not show a normal reading 2060 PSI after a few seconds of operation c If the oil level is normal DO NOT restart the engine Call your dealer for assistance 8 SERVICING SCHEDULE CHART The Servicing Schedule Chan below shows the service schedule required for proper maintenance of your generator set More detailed coverage of each Service Point SP is listed on the page noted in the page co1umnDAILY EVERY 100 HOURS SP1 Check oil level in engine SP23 Change engine oil and filter SP7 Check primary fuel filter SP4 Check air cleaner SP13 Check cooling water level SP16 Check and clean radiator industrial only Check sea strainer marine EVERY 200 HOURSAFTER FIRST 50 HOURS SP8 Change primary fuel filter element SP9 Change secondary fuel filter SP23 Change engine oil and filter SP5 Check Vbelt tension EVERY 600 HOURS SP6 Adjust valves SP18 Check electrolyte in batteries SP6 Check valve clearances Retighten head bolts sec pg 12 SPI 1 Check injectors SPI4 Check and flush cooling systemEVERY 50 HOURS SP17 Change impeller marine SP19 Check state of charge of batteries SP5 Check Vbelt tension SPI8 Check electrolyte in batteries EVERY 2400 HOURS SP12 Check fuel injection pump SP15 Check and clean heat exchanger marine onlySERVICE DAILY 50 100 200 600 2400 POINT PAGE OPER Hours Hours Hours Hours Hours SP1 ENGINE 812 Check oil level SP2 12 Change engine oil 1 5 SP3 12 Change lube oil filters 1 5 SP4 12 Check air cleaner 1 4 SP5 11213 Check VBelt tension 1 SP6 13 Check valve clearances 1 5 SP7 FUEL SYSTEM 13 Check primary filter Racor 2 SP8 1314 Change primary filter element Racor 2 3 SP9 14 Change secondary fuel filter 1 3 SP 10 14 Bleed the fuel system 3 SP 11 1416 Check injectors 1 SP 12 16 Check fuel injection pump SP13 COOLING SYSTEM 816 Check cooling water level SP 14 1617 Check and flush cooling system SP 15 17 Check and clean heat exchanger marine SP 16 17 Check and clean radiator fins industrial SP 17 17 Change impeller in seawater pump marine 1 3 SP 18 ELECTRICAL SYSTEM 18 Check electrolyte level in batteries 1 4 SP 19 18 Check condition of batteries with hydrorneter 1 SP 20 OUT OF SERVICE 18 Winterizing or outofservice 31 Perform all maintenance once a year even if hour level has not been 5 After first 50 hoursreached 6 Adjust at first 100 hours2 Consult manufacturers maintenance schedule note on chart3 Whenever necessary4 More often if necessary 9 SERVICE RECORD Service OPERATION HOURS DATE Point 50 HOURSSP 5 Check Vbelt tensionSP18 Check electrolyte in batteries 100 HOURSSP2 Change engine oilSP3 Change lubricating oil filtersSP4 Check air cleanerSP16 Check and clean radiator fins industrial 200 HOURSSP7 Change primary filter element RacorSP9 Change secondary fuel filter EVERY 600 HOURSSP6 Check valve clearancesSP11 Check injectorsSP14 Check and flush cooling systemSP17 Change impeller in seawater pump marineSP19 Check condition of batteries with hydrometer 2400 HOURSSP11 Check fuel injection pumpSP16 Check and clean heat exchangerSP17 Check and clean reverse par oil cooler 10 SERVICING 4 Change oil when engine is GENERAL 5 Dispose of waste oil in an approved manner1 Use only clean high quality lubricants stored in clean 6 Never use a flushing oil containers in a protected area 7 Loosen clamp on oil change tube Remove cap Drain2 These lubricants are acceptable oil Replace cap and tube a API Service CCCDCE single viscosity oils 8 Refill engine with recommended oil b API Service CCCDSF multiviscosity oils 9 Engine capacity oil filter is3 Use the proper weight oil for your average operation 643 and 673 32 quarts 3 liters temperature SP3 CHANGING OIL FILTER 1 Change the lube oil filter every 100 hours Air Single Multi Oil filter part number is 2402001 2 Use a filter wrench to remove old filter Dispose of Temperature Viscosity Viscosity filter in approved manner Above 320F SAE30W SAE 1540W 3 Make sure the gasket from the old filter is removed 0C and discarded Clean mount face 4 Spread a thin film of engine oil on the rubber gasket 10 to 320F SAE10W SAE 1030W on the new filter and screw it on nipple until gasket 23 to OC meets the sealing surface 5 Using hands only no wrench tighten filter onehalf Below 1 OOF SAE5W SAE 520W turn farther Overtightening can do damage to filter 23C housing 6 Fill engine with recommended oil Start engine and check for leakage Stop engine wait 3 minutes andFigure 5 Lube Oils check oil levelAdd additional oil if necessary4 Some increase in oil consumption may be expected SP4 AIR CLEANER when SAE 5W and SAE 520W oils are used Check 1 Inspect air cleaner every 100 hours In dusty oil level frequently conditions check more often5 Never put additives or flushing oil in crankcase M643 AND M673 Remove plate on bottom of air intakeSP1 CHECKING OIL LEVEL manifold Inspect clement If dirty wash element in1 Check the oil level inthe crankease with the dipstick soapy water Rinse and dry thoroughly before The oil level must be in the waffled area on stick reinstalling Never allow the level to go below this area Follow the NL643 lubrication above Element cannot be cleaned Replace it when necessary Part number 408620002SP2 OIL CHANGES IMPORTANT Make absolutely sure no impurities enter the1 The set is delivered with special breakin oil Change engine while changing the element Do not run the the engine oil and oil filter after 50 hours of operation engine with the air cleaner removed Use RPM Delo Series 100 30 weight or equivalent SP5 VBELTS Service CC 30 weight oil during the first 100 hours Change the oil and filter again at 100 hours using the 1 Check the tension and wear on the Vbelt after every oil recommended in the above diagram After 50 hours this change oil and filter every 100 hours 2 Use your thumb to press on the belt at the midpoint2 During intermittent cold weather operation change oil between the crankshaft and altemator every 100 hours or six weeks whichever comes first3 Change oil at any seasonal change in temperature when a new viscosity of oil is required 11 SERVICING pulleys The tension is correct if the belt can be depressed about 316 in CYLINDER HEAD BOLTS1 Retighten the head bolts after the first 50 hours2 Tighten bolts when the engine is cold3 Loosen the nuts and remove rocker arm cover4 Tighten head bolts with a torque wrench in order shown in figures below Tighten bolts evenly in 2 or 3 passes ending at specified torque in final pass a 643 and 673 2629 ftIbs 3540 kgm Figure 7 Valve Adjustment FUELSGENERAL 1 Use only clean high quality fuels of the following specifications as defined by ASTM designation D975 for diesel fuels a Use grade no 2 diesel at ambient temperatures above freezing 32F OC b Use grade no 1 at ambient temperatures below freezing and for all temperatures at an altitude ofFigure 6 Head Torque Sequence above 5500 ft 1500 meters 2 Use fuel having less that 1 sulphur preferably lessSP6 VALVE CLEARANCES that 051 Readjust valve clearance after first 50 hours of 3 The cetane number should bc a minimum of 45operation and every 600 hours thereafter 4 DO NOT use these unsuitable grades of fuel2 Valve adjustments should bc done after the cylinder a Domestic heating oils all typeshead bolts have been retightened Engine should be cold and b Class B engineNOT running c Class D Domestic fuels d Class E F G or H industrial or marine fuels3 Watch the valves while turning the engine over by and e ASTMD97560T No 4D and higherTurn until the 1 cylinder inlet valve starts to open and the number fuelsexhaust valve starts to close the valves are rocking Then 5 Storing fuelturn the crankshaft one more full turn and adjust the a Keep dirt scale water and other foreign on both valves for this cylinder out of fuel4 Loosen the lock nut and adjust the clearance between b Avoid storing fuel for long periods of timethe rocker arm and valve guide of both the intake and c Fill the fuel tank at the end of each daysexhaust valves with the adjustment screw Clearance on operation This will reduce intake and exhaust valves should be 0008 in 02 SP79 FUEL FILTERSmm 1 Your generator set should have a primary fuel filter installed We recommend the Racor brand of fuel filter5 Repeat steps 3 and 4 for each cylinder Each set of water must be adjusted individually a Check the primary fuel filter dally as recommended by the filter manufacturer Empty6 Replace rocker arm cover Tighten cover nuts to the collection bowl as necessary7287 ftlb 112 kgm b Change the element as often as necessary or every 200 hours 12 SERVICING c If the bowl fills with water change the primary and 6 After engine has started use a piece of cardboard to look secondary element immediately2 Change secondary fuel filter every 200 hours for leaks a Remove the spinon filter by turning it with a filter wrench Fill the new cartridge with fuel and install A after applying engine oil to gasket surface Screw on until the gasket surface comes into contact with sealing surface of filter base Then tighten it twothirds of a turn by hand Do not overtighten3 Fuel filter part number is M643 and 673 2452020 NL643 360720020SP1O BLEEDING THE FUEL SYSTEMCAUTION Escaping diesel fuel under pressure canpenetrate skin causing serious personal injury lines be sure to relieve all pressure Before Figure 8 Fuel Systemapplying pressure be sure all connections are tight andlines pipes and hoses arent damaged Fuel escaping froma very small hole can be almost invisible Use a piece of SP11 INJECTOR or wood rather than hands to search forsuspected leaks If injured by escaping fuel see a doctor at 1 Injectors should be checked every 600 hours Checkonce Serious infection or reaction can develop if proper should bc made by Northern Lights dealer or localmedical treatment isnt administered immediately injection repair station1 The fuel system is selfbleeding However any system CAUTION Escaping diesel fuel under pressure can have may need manual bleeding when sufficient force to penetrate the skin causing serious a A new fuel filter is installed personal injury If injured by escaping diesel fuel see a b The engine has run out of fuel doctor at once c The fuel lines injection pump or any other fuel 2 Injector removal system component has been removed and installed a Clean loose dirt from around the injectors and the fuel2 Loosen bleed screw A Fig 8 on top of the filter lines Pump hand primer B on fuel lift pump until pure fuel b Relieve high pressure in the fuel lines by no bubbles escapes from bleed screw A Tighten loosening the delivery line flare nuts at each injector Figure bleed screw A 93 Loosen bleed screw C Pump hand primer B on fuel lift pump until pure fuel no bubbles escapes c Remove delivery lines by disconnecting from from bleed screw A injectors and injection pump Figure 10 Remove all lines4 If the engine does not start after the above bleeding as an assembly do not remove the spacers Cover the ends process loosen a fuel line at the injector Pump hand of the lines the injector inlets and injection pump outlets to primer B until pure fuel escapes then tighten keep dirt out connection Do each line oneatatime d Remove the return line retaining bolts Figure 11 Remove the retum line Figure 12 e Unscrew and remove the injectors Figure 13 NOTE Do not use pry bars to remove injectors from cylinder head 13SERVICING 14 SERVICING f After removing injectors discard the copper COOLING SYSTEM GENERAL sealing washers from the injector hole in the head Figure 14 Cover holes to prevent dirt and NOTE Marine setsBe sure to close the seacock before debris from entering cylinders working on the engine cooling system4 Injector repair and cleaning Take injectors to your Northern Lights dealer or local injection repair station5 for testing and service Injector installation CAUTION The cooling water in the engine reaches a Install a new copper sealing washer in each extremely high temperatures You must use extreme injector hole Figure 14 caution when working on hot engines to avoid burns b Screw in injector and tighten to 43 or 50 ftIbs 6 Allow the engine to cool before working on the cooling to 7 Kgm Figure 15 system Open the filler cap carefully using protective clothing when the engine is warm NOTE Overtightening can damage injectorc Install return line using new copper sealing above and SP13 CHECKING THE COOLANT LEVEL below each connection Tighten return line retaining bolts to 2230 ftbs 1 Check the coolant level each day before starting thed Install delivery lines Leave loose at injectors for engine bleeding 2 Check the coolant level by removing the pressure cape Pump hand level on fuel pump to fill lines Tighten from the expansion tank or radiator lines at injectors Start engine and check for leaks using a piece of paper or cardboard DO NOT use CAUTION The cooling water in the engine reaches hand to check for leaks extremely high temperatures You must use caution when working on hot engines to avoid burns Allow the engine to cool before working on the1 Since operating conditions may vary considerably it is cooling system Open the filler cap carefully using difficult to give a definite interval But as a rule the protective clothing when the engine is warm pump settings maximum speed idle speed and 3 In order to give the cooling water an opportunity to exhaust smoke should be checked after every 2400 expand the level should bc about 1 in 25 cm below hours of operation Service of the fuel injection pump the filler cap sealing surface when the engine is cold should only bc done if checks indicate pump 4 The pressure valve in the filler cap releases when malfunction the pressure is approximately 7 PSI 05 bar Use a2 Black smoke can be an indication of pump cap pressure tester to check cap if you suspect it is malfunctions Before servicing pump check the other faulty possible causes a Check cleanliness of air filter SP14 COOLING SYSTEM FLUSHING b Check valve clearances 1 Flush the cooling system every 600 hours or every 12 c Clean and check injectors months whichever comes first3 Any repair which 1nvolves disassembly of theinjection pump must bc carried out by MARINE mechanics with the proper tools and test devices a Remove expansion tank cap and open drain cock NOTE All warranties on the engine become null and on engine block void if the injection pump seals are broken by b Pour clean water into expansion tank until water unauthorized persons coming from drain is free of discoloration and sediment c Let water drain completely d Close drains and refill with recommended mixture Note Open sea cock before running engine 15 SERVICING 5 Replace the cover using a new a Remove radiator cap and open drain cocks on NOTE Make sure that there is always an extra impeller radiator and engine block and cover gasket in reserve on board b Pour clean water into radiator until water coming GENERATOR ENDS from radiator is clear of discoloration c Close the radiator drain and continue flushing The maintenance and operation for until water from engine drain is clear Open all the generator end are in a separate Owners Manual If drain cocks and drain completely Close drain you do not have one of these manuals contact your cock and refill with recommended coolant local dealer mixture Clean fins on radiator ELECTRICAL SYSTEM GENERALMARINE AND INDUSTRIAL 1 Never switch battery switch off or break the circuit2 Use 50 water50 ethylene glycol antifreeze mix between the alternator and batteries while the engine is Antifreeze mixture is recommended as a good running Regulator damage can result yearround coolant 2 Do NOT reverse the polarity of battery cables when3 Check hoses and connections and repair any leakage installing the battery 3 When welding on the unit disconnect the regulatorSP 15 HEA T EXCHANGER MARINE and battery Isolate the leads1 Clean the heat exchanger core once a year or after 4 Disconnect battery cables when servicing the DC 2400 hours of operation alternator2 Drain expansion tank and heat exchanger 5 Never test with a screwdriver etc against any3 Remove heat exchanger end covers and remove core terminal to sec if it emits sparks4 Clean the inside of exchanger core tubes using a metal 6 Do not polarize the alternator or regulator rod Flush inspect and clean again if necessary 7 A DC circuit breaker protects your control panel and5 Reassemble Fill the cooling system start the engine wiring harness It is located in the side of the generator and check for leaks junction boxSPI6 CLEAN RADIATOR INDUSTRIAL GLOW PLUGS1 Remove debris from radiator fins daily 1 Each cylinder is supplied with a glow plug which2 In very dusty applications clean the radiator with serves to heat the combustion chamber compressed air or steam cleaner every 100 hours Clean in the reverse direction of airflowSP 17 RAW WATER PUMP MARINE1 Change the seawater pump impeller every 600 hours or as needed2 Remove the pump end cover Pry out the impeller withthe help of two screwdrivers Be sure you remove all piecesof failed impellerNOTE Place some kind of protection under in order not to damage the housing3 Clean the inside of the housing4 Press in the new impeller and place the sealing washers in the outer end of the impeller center if this has not already been done Figure 16 Glow Plug Strip 16 SERVICING2 To check the glow plugs loosen the current carrying SP1819 BATTERY CARE flat wire between the pluspoles of the glow poles Figure 16 Connect a DC test bulb between the 1 Check electrolyte level every 50 hours or once per pluspole of the battery and the pluspole of the glow month Add distilled water to manufacturers plug If the bulb lights up the glow plug is functioning recommended level properly 2 Batteries cables and cable terminals should be3 Check all glow plugs and replace any faulty ones checked and cleaned every 100 hours Clean corrosion with a water and baking soda solution Flush withBOOSTER BATTERIES clean water Tighten terminals and grease them to inhibit corrosion 3 Check the battery condition with a hydrometer every CAUTION Battery Gas Can Explode Keep all flames 600 hoursand sparks away from batteries SP20 WINTERIZING OUTOFSERVICE2 Before changing or using booster batteries check MARINE battery electrolyte level Add distilled water if 1 Drain fresh water and seawater cooling systems necessary completely Flush fresh water system and refill with3 Booster and main batteries must have the same voltage proper antifreeze mixture Remember to shut off rating seacocks before opening drain cocks4 First connect positive terminal of booster battery 2 Drain water supply lines and wet exhaust line to positive terminal of main battery Then connect 3 Loosen the seawater pump cover and drain pump negative terminal of booster battery to ground on INDUSTRIAL the engine block Sec Figure 17 1 Drain and flush radiator and cooling system Leave dry5 Remove booster battery after starting engine or refill with mixture If refilling start6 Sealed batteries See manufacturer charging and the engine and run to circulate the antifreeze booster instructions 2 Fill fuel tank or add biocide as per manufacturers instructions 3 Seal air cleaner inlet exhaust opening crankcase breather pipe and fuel tank vent with plastic bags and tape 4 Store the set in a dry protected place If unit must be stored outside be sure it is well protected with a cover MARINE AND INDUSTRIAL 1 Change the crankcase oil and filter 2 Loosen the alternator belt 3 Disconnect and clean battery Remove to warm storage place if possible 4 Clean outside of unit Paint any scratched or chipped surfaces Put corrosion preventative on all exposed metal surfacesFigure 17 Battery Connections 17 AC GENERATOR TFIIIGenerator Fig 19 10 Coupling boss Control Box Fig 20 11 Coupling boit with washer1 Stator assembly 12 Coupling nut 1 Fuse for main circuit2 Rotor assembly MNL 643 PN 22683123 Frame M673 PN 22480114 Ventilation cover 2 Fuse for AVR PN 22683095 Attaching screw 3 Output terminal board6 Carbon brush assembly PN 2268304 4 Circuit breaker7 Attaching screw 5 Control panel and hour meter ind only8 Ball bearing PN 2268305 6 Automatic voltage regulator AVR9 Ventilation cover 7 Control terminal board 8 A Generator Set includes the engine the generator 3 Generator voltage builds up from the residual and the control or Y box Fig 18 magnetic field of the rotator located in the generator2 The generator and the control or Y box produce the Fig 192 and electrical output voltage is controlled electrical power by the automatic voltage regulator AVR located in the control box Fig 206 18 AC GENERATOR The generator can bc wired to produce 120 volts2 120 Volt Output a 120 volt output can be selected by connecting the VI and 120 terminals of the control terminal board Fig 21 b Connect Ul to U2 and VI to V2 on the output terminal board Fig 22 Connect 120 volt output leads to terminals Ul and V2 Figure 23 Control Terminal Board 240 Volt OutputFigure 21 Control Terminal Board 120 Volt Output Figure 24 Output Terminal Board 240 Volt output 4 120240 Volt Output a Connect the control terminal board for 240 volts Figure 25Figure 22 Output Terminal Board 120 Volt Output3 240 Volt Output a Connect V2 to 240 on the control terminal board Fig 23 b Connect U2 to VI on the output terminal board Fig 24 Figure 25 Control Terminal Board 1201240 Volt Output b Connect U2 and VI on the output board Figure 26 Connect output leads to U2 and V2 and neutral lead to VI or U2 240 volt output is available from the leads connected to Ul and V2 The 120 volt load should be divided as equally as possible between two 120 volt circuits 19 AC GENERATOR TFIII c Wiping is the only effective method for removing dust and foreign materials Use a clean lint free piece of cloth 3 If the generator has not been operated for an extended period of time check the insulation resistance of each stator coil and the rotor Disconnect the AVR from the generator when performing this test Figure 28Figure 26 Output Terminal Board 1201240 Volt Output Figure 28 A VR Connector 4 Voltage Adjustment a If there is some voltage but it does not build upOPERA TION to rated voltage voltage adjustment can be made In order to ensure long troublefree life the generator using the hand trimmer in the AVR Figure must be operated properly and the specified 29 maintenance must be performed b The normal voltage setting at no load is 121 voltsOPERA TING ENVIRONMENT at 62 Hertz or 242 volts at 62 Hertz Always keep electrical equipment clean Moisture salt dust and oil will damage the generator The operating environment must bc kept as clean and moisture free as Good ventilation is important for proper generation operating When installing the generator set bc sure the ambient temperature does not exceed 40C104F during Proper and effective maintenance is required to ensure Figure 29 Hand Trimmer Location troublefree operation In addition to the above items the following are required1 Periodically check all bolts and nuts for proper torque 5 Flashing the Fields a If there is no voltage This is especially true for coupling bolts buildup on startup zero volts measured with a2 Be sure to keep the generator area clean and dry voltmeter the generator may have no residual a Dust and foreign material may reduce the flow of magnetic field cooling air reducing heat dissipation and causing the generator to overheat b If electrically conductive debris accumulates on the windings or if moisture or salt water are absorbed into the windings the windings may short or ground reducing voltage output 20 AC GENERATOR TFIIIb To flash the field and build the residual magnetismapply 12 volts DC to terminals K and J as indicatedin Figure 30c AVR must be disconnected when flashing fields or itcould be ruinedFigure 30 Flashing the Fields Figure 32 Brush Location6 Check the ball bearing in the generator end a Listen for unusual noise c Attach leads to new brush assembly and install it b Abnormal temperature rise can be noted by with the plastic cars towards the front of the discoloration generator c If the bearing is failing it must be replaced Note Be sure to connect wire J to terminal J and connect d Generator bearings should be replaced by your wire K to terminal K Northern Lights dealer at 10000 hours 9 Replacing Fuses7 Check the brushes a To protect the generator and AVR from a The carbon brushes gradually wear with use so unbalanced loads and over loads two 20 amp they must be inspected periodically and replaced fuses are placed in the output circuit and one 3 as necessary amp fuse is placed in the AVR sensing circuit b If the brushes are excessively worn as to expose b Always replace fuses with the same brand and the pigtail Figure 31 sparking will occur at the the same circuit interruption surface of the slip ring causing surface damage Therefore periodic inspection of the brushes is important c Normally the brushes will have to be replaced with a new brush assembly within 3000 hoursFigure 31 Brush Pigtail Figure 33 Fuse Locations8 Replacing brushes a Shut down generator Remove four screws and end cover of the generator b Brush assembly is white plastic with two wires leading to it It is located at ten oclock and is held in position by 2 screws Figure 32 Remove screws and unplug leads 21 AC GENERATOR TFIIIFigure 34 A VR Fuse Holder10 Parts See Parts Book for Complete List a Fuse for main circuit MNL 643 PN 2268312 M673 PN 2248011 b Fuse for AVR sensing circuit PN 2268309 c Bearing PN 2268305 d Brush assembly PN 226830411 Test Specifications Sec Wiring Diagram a Resistance of JK 166 ohm at 20C 68F b Resistance of AB 025 ohm at 20C 68F c Resistance of UIV2 056 ohm at 20C 68F d No load voltage setting 242V or 121V at 62 Hz with cold generator 22 If you cannot correct problems with these procedures see your Northern Lights dealer No fuelDC ELECTRICAL SYSTEM Check level of fuel in fuel tank Battery will not charge Low battery output Check electrolyte level and condition Loose or corroded connections Clean and tighten battery connections Excessive resistance in starting circuit Clean and tighten all battery connections Sulfated or worn out batteries Check specific gravity of each battery Crankcase oil too heavy Use oil of proper viscosity Check electrolyte level of each battery Improper type of fuel Loose or defective alternator belt Consult fuel supplier and use proper type of fuel for Adjust belt tension operating condition Replace belt Water dirt or air in fuel system Drain flush fill and bleed system Starter inoperative Clogged primary fuel filter element Check DC circuit breaker Clean or replace filter element If the breaker is tripped reset it Clogged secondary fuel filter element Loose or corroded connections Replace filter element Clean and tighten loose battery and harness plug connection Dirty or faulty injection nozzles Have your dealer check injection nozzles Low battery output Check specific gravity of each battery Engine runs irregularly or stalls frequently Check electrolyte level of each battery Below normal engine temperature Defective electrical system ground wire Remove and check thermostat Repair or replace Clogged primary fuel filter element Clean or replace filter element Starter cranks slowly Clogged secondary fuel filter element Low battery output Replace secondary filter element Batteries too small Water or dirt in the fuel system Battery cables too small Drain flush fill and bleed system Check specific gravity of each battery Dirty or faulty injection nozzles Replace battery if necessary Have your dealer check injection nozzles Check electrolyte level of each battery Air in fuel system If low fill cells with distilled water Inspect clamps and hoses on suction side of fuel Crankcase oil too heavy pump for air leak Fill with oil of appropriate viscosity Improper type of fuel Loose or corroded connections Consult fuel supplier and use proper type of fuel for Clean and tighten loose connections operating condition Entire electrical system does not function Lack of engine power Check DC circuit breaker Engine overloaded If breaker is tripped reset it Reduce load Faulty connection Intake air restriction Clean and tighten battery and harness plug Service air cleaner connections Clogged primary fuel filter element Sulfated or worn out batteries Clean or replace filter element Check specific gravity and electrolyte level of each Clogged secondary fuel filter element battery Replace filter elementENGINE Improper type of fuel Consult fuel supplier and use proper type of fuel for Engine hard to start or will not start operating conditions Improper starting procedure Overheated engine See starting section of this manual Take special See Engine Overheats in next category note of Bypass Switch operation 23 If you cannot correct problems with these procedures see your Northern Lights dealer Below normal engine temperature Engine not at proper temperature Remove and check thermostat Check your thermostats Improper valve clearance Check water temperature with thermometer and Reset valves Best done by dealer replace gauge if necessary Dirty or faulty injection nozzles Replace injectors Best done by dealer Below normal engine temperature Thermostats not working properly Sec your local dealer Check overheats Temperature gauge not working properly Engine overloaded Check water temperature with thermometer Reduce electrical load Low oil pressure Low coolant level Low oil level Fill tank or radiator to proper level Fill crankcase to proper level Check hoses for loose connections and leaks Improper type of oil Keel cooling tubes have been painted marine Drain and fill crankcase with correct oil Remove paint from tubes Partially plugged oil filter Cooling system needs flushing Replace filter Flush cooling system High oil consumption Defective thermostat Remove and check thermostat Breakin period Oil consumption decreases after break in Defective temperature gauge Check water temperature with thermometer and Crankcase oil too light replace gauge if necessary Use proper viscosity oil Water pump impeller worn broken marine Oil leaks Check impeller and replace if necessary Check for leaks in lines around gaskets and drain plugEngine knocks Engine overheats Insufficient oil See Engine Overheats Call your dealer Engine emits black or gray exhaust smoke Injection pump out of time Call your dealer Clogged or dirty air cleaner Service air cleaner Below normal engine temperature Check your thermostats Defective muffler back pressure too high Have dealer check back pressure Check water temperature to see if temperature gauge is working properly Improper fuel Use correct fuel for temperature Engine overheating See Engine Overheating section Engine overloaded Reduce electrical loadHigh fuel consumption Injection nozzles dirty Improper type of fuel See your dealer Use correct fuel for temperature Engine out of time Clogged or dirty air cleaner Sec your dealer Service air cleaner Engine emits white smoke Engine overloaded Reduce electrical load Improper fuel Use correct fuel for temperature Improper valve clearance See your dealer Cold engine Warm up engine to normal operating temperature Injection nozzles dirty See your dealer Defective thermostat Remove and check thermostat Injection pump out of time See your dealer Engine out of time See your dealer 24 NORTHERN LIGHTS MARINE DATAMODELALL M643 M673kW RPM Hz 5 1800 60 35 1500 50 6 1800 60 48 1500 50General 3Displacement 376 in3617L 411 in3 676LCycle 4Bore 252 in 64mm 264 in 67mmStroke 252 in 64mmRotation Facing Flywheel Ratio 241Crankcase Capacity 29 US qts Weight Complete Unit 345 lbs 157 kg 352 lbs 160 kgHeight 196 in 498 mmWidth 172 in 437 mmLength 296 in 683nimCooling SystemApprox Cooling System Capacity 2 US qt 189LMinimum ThroughHull Diameter 75 in 19mmSeawater Pump Inlet Hose ID 75 in 19minMinimum Seawater Discharge 75 in 19mmHeat Rejection to Jacket Water 500 BTUmin 600 Pump Capacity 50 US GPM 41 US GPM 50 US GPM 41 US GPM 1577 Lmin1892 Lmin 1577 Lmin 1892 LminMax Seawater Pump Suction Head 39 in 1 mSeawater Pump Capacity 9 US GPM 75 U S GPM 9 US GPM 75 US GPM 34 Lmin 284 Lmin 34 Lmin 284 LminKeel Cooler Round Tube Length 5 ft 15mKeel Cooler Head Diameter 34 in NPT 191 mmKeel Cooler Water Hose IDDischarge and Suction 10 in 25 Battery Capacity 0F 17C440 ccaBattery Cable Size 2 up to 10 ftInstrmnt Harness Length Standard 20 ft 61mStarting Voltage Negative Ground 12AirGenerator Cooling Air Flow 200 ft3 57m3min166 ft3 47 m3min 200 ft3 57m3min166 ft3 47 196 ft3 56m3min 163 ft3 46m3min214 ft3 61m3min 178 ft3 5m3minMinimum Engine Roorn Vent 52 in2 34 cm2 57 in2 37 cm2Maximum Exhaust Back Pressure 48 in 122 cmH2OWet Exhaust Elbow OD 15 in 38 mm ODDry Exhaust Elbow ID 125 in NPTMax Intrmtnt Eng Oper AngleFront or Rear Down 15FuelMinimum Suction Line 14 in 635mmMinimum Return Line 14 in 635mmMax Fuel Pump Head Suction 39 in 10mPerformance DataRated Flywheel HP 73 50 87 70Generator Rating 5 kW 60hz 35 50hz 6kW 60hz 48 50hzSpecific Fuel Consumption 0444lbshphrat Maximum Load 270 Fuel Rate 045 US GPH O3I US GPH 054 US GPH 043 US GPH l 181 Lhr 20 Lhr 166 Lhrat Maximum Load 173 Lhr 25 NORTHERN LIGHTS INDUSTRIAL DATAModel Number NL643kW Output at 60 Hz 1800 RPM 1 5120240 Volt Amperage 208A120 Volt Amperage Phase 1kW output at 50 Hz 1500 RPNI 1 35110220Volt Amperage 159A240 Volt Amperage NA110 Volt Amperage 318 APhaseOptional Phase 1EngineLugger model diesel L643Cylinders 3Displacement in 3 L 376 061Bore in mm 2564Stroke in mm 2564HP 1800 RPM 75Approx fuel rate 1800 RPMwith a full load US galhr Lhr 051 19with a half load US galhr Lhr 03l1Dimensions DataExhaust outlet in mm 125 32Fuel inlet and return in mm 516 8 hoseLength in mm 33 1834Width in mm 15 386Height in mm 25 650Approx dry weight lbs kg 370 169Note 1 Based on 10 unity power factor Deratings 3 per 1000 ft over 500 ft above sea level 1 for every 10 over 85F 26DC WIRING DIAGRAM 27AC WIRING DIAGRAM 28
NOTICE: Some pages have affiliate links to Amazon. As an Amazon Associate, I earn from qualifying purchases. Please read website Cookie, Privacy, and Disclamers by clicking HERE. To contact me click HERE. For my YouTube page click HERE